99 Fourth Concession Road Unit# 612, Burford, Ontario N0E 1A0 (29554373) - Peter Benninger Realty
Call Us Icon
519.742.5800 Facebook Icon Instagram Icon LinkedIn Icon YouTube Icon

99 Fourth Concession Road Unit# 612 Burford, Ontario N0E 1A0

2 Bedroom 1 Bathroom 858 ft2
Mobile Home Central Air Conditioning Forced Air, Hot Water Radiator Heat

$340,000

Maintenance,

$586 Monthly

Welcome to this modern 2023 park home in the sought-after Twin Springs community, just minutes from Burford. Offering bright, open-concept living, this well-appointed home features a stylish kitchen with a large centre island, floor-to-ceiling pantry, and stainless steel appliances overlooking the living and dining area. The home includes a spacious primary bedroom, one additional versatile bedroom, and a full 4-piece bathroom. Enjoy outdoor living on the newly built extended treated wood deck, complete with a convenient storage shed. A rare oversized parking pad provides four dedicated parking spaces, an exceptional feature for the community. Residents of Twin Springs enjoy access to a spring-fed lake, sandy beach, and community events, all conveniently located near Brantford and Highway 403. (id:42568)

Property Details

MLS® Number 40816690
Property Type Single Family
Amenities Near By Shopping
Communication Type High Speed Internet
Community Features Quiet Area
Features Conservation/green Belt, Balcony, Crushed Stone Driveway, Country Residential
Parking Space Total 4

Building

Bathroom Total 1
Bedrooms Above Ground 2
Bedrooms Total 2
Appliances Dishwasher, Dryer, Refrigerator, Washer, Microwave Built-in, Gas Stove(s), Hood Fan, Window Coverings
Architectural Style Mobile Home
Basement Type None
Construction Style Attachment Detached
Cooling Type Central Air Conditioning
Exterior Finish Vinyl Siding
Fire Protection Smoke Detectors
Heating Fuel Natural Gas
Heating Type Forced Air, Hot Water Radiator Heat
Stories Total 1
Size Interior 858 Ft2
Type Mobile Home
Utility Water Drilled Well

Parking

Open

Land

Access Type Road Access, Highway Access, Highway Nearby
Acreage No
Land Amenities Shopping
Sewer Septic System
Size Total Text Under 1/2 Acre
Zoning Description Os3-3

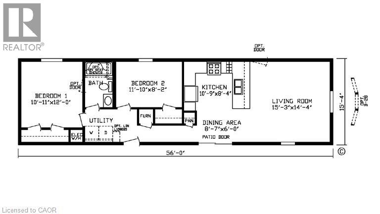
Rooms

Level Type Dimensions
Main Level 4pc Bathroom 5'0'' x 5'0''
Main Level Living Room 15'3'' x 14'4''
Main Level Dining Room 8'7'' x 6'0''
Main Level Kitchen 10'9'' x 8'4''
Main Level Bedroom 11'10'' x 8'2''
Main Level Primary Bedroom 10'11'' x 12'0''

Utilities

Electricity Available
Natural Gas Available
Telephone Available

https://www.realtor.ca/real-estate/29554373/99-fourth-concession-road-unit-612-burford

Contact Us

Contact us for more information

Generating Captcha

Peter Lawrence Finlay Buchanan
Salesperson

(905) 929-4588

2 Percent Realty
#302, 2233 Argentia Road
Mississauga, Ontario L5N 2X7

(905) 379-6616
www.2percentrealty.ca/

Your Favourites

 

No Favourites Found